2級土木施工管理技士(土木) の 5門
第1問
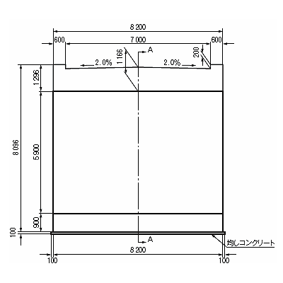
重力式コンクリート砂防えん堤の標準的な構造に関する次の説明の【イ】【ロ】【ハ】について、それぞれの名称の組合せのうち、適当なものはどれか。
[説明文]
【イ】水や土砂を安全に越流させるために設けられ、一般的にその形状は逆台形である。
【ロ】本堤を越流した落下水によるえん堤下流部の洗掘を防止するために設けられる。
【ハ】施工中の流水の切替えや堆砂後の浸透水を抜いて水圧を軽減するために設けられる。
【イ】袖 ……【ロ】前庭保護工……【ハ】ウォータークッション
【イ】水通し ……【ロ】前庭保護工 ……【ハ】水抜き
【イ】水通し ……【ロ】袖 ……【ハ】ウォータークッション
【イ】袖 ……【ロ】水通し ……【ハ】水抜き
2級土木施工管理技士(土木) の 5門
第2問
ケーソン式混成堤の施工に関する次の記述のうち、適当でないものはどれか。
一般に陸上で製作されたケーソンは、海上に浮上させ基礎捨石工の場所までえい航して据え付ける場合が多い。
ケーソンは、据え付け後すぐにケーソン内部に中詰めを行って質量を増し、安定を高めなければならない。
ケーソンの据付けは、起重機船や引き船などを併用してワイヤー操作によってケーソンの位置を決めて注水しながら徐々に沈設する。
波浪や風などの影響でケーソンのえい航直後の据付けが困難な場合には、波浪のない安定した時期まで浮かせて仮置きする。
2級土木施工管理技士(土木) の 5門
第3問
上水道の導水管布設に関する次の記述のうち、適当でないものはどれか。
急勾配の道路に沿って管を布設する場合には、管体のずり上がり防止のための止水壁を設ける。
傾斜地などの斜面部でほぼ等高線に沿って管を布設する場合には、法面防護、法面排水などに十分配慮する。
軟弱地盤に管を布設する場合には、杭打ちなどにより管の沈下を抑制する。
砂質地盤で地下水位が高く、液状化の可能性が高いと判断される場所では、必要に応じ地盤改良などを行う。
2級土木施工管理技士(土木) の 5門
第4問
建設現場で発生する産業廃棄物の処理に関する次の記述のうち、適当でないものはどれか。
事業者は、産業廃棄物の処理を委託する場合、産業廃棄物の発生から最終処分が終了するまでの処理が適正に行われるために必要な措置を講じなければならない。
産業廃棄物の収集運搬にあたっては、産業廃棄物が飛散及び流出しないようにしなければならない。
産業廃棄物管理票(マニフェスト)の写しの保存期間は、関係法令上5年間である。
産業廃棄物の処理責任は、公共工事では原則として発注者が責任を負う。
2級土木施工管理技士(土木) の 5門
第5問
レディーミクストコンクリートの施工に関する次の記述のうち、適当でないものはどれか。
レディーミクストコンクリートを注文する場合は、コンクリートの種類、呼び強度、スランプ、粗骨材の最大寸法などを組み合わせたものから選ぶ。
コンクリートを練り混ぜてから打ち終わるまでの時間は、原則として気温が25℃を超えるときは1.5時間を超えないようにする。
型枠やせき板には、はく離剤を塗布し硬化したコンクリート表面からはがれ易くする。
現場内での運搬方法には、バケット、ベルトコンベア、コンクリートポンプ車などによる方法があるが、材料の分離が少ないベルトコンベアによる方法が最も望ましい。